Apartamento en pleno Passeig de Gràcia, son piscina y solàrium en cubierta

2.500 €
Estado Como nuevo
Categoría Contactos
Ubicación Barcelona
Vistas 0
Publicado 15/01/2026 08:33
ID #17684623815640
Avatar de KONECTAS

KONECTAS

(50 reseñas)

Comentario del anunciante

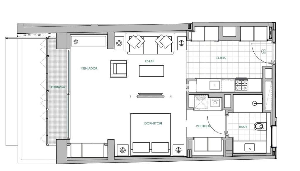
¿Te gustaría vivir en pleno Passeig de Gràcia?En un complejo residencial que ha recuperado las fachadas originales y ha sido diseñado con las mejores tecnologías de eficiencia energética.Piso de una habitación con cocina abierta totalmente equipada con electrodomésticos, suelos de parqué en toda la vivienda, excepto en baño y cocina, donde son de gres porcelánico. Además, está equipado con aire acondicionado por conductos y sistema de calefacción por suelo radiante para garantizar el máximo confort.El piso dispone de un amplio salón-comedor con amplio ventanal. Un espacioso dormitorio con gran entrada de luz natural. Cuenta con baño y vestidor.El edificio ofrece servicios exclusivos, como piscina y solárium en la cubierta con césped artificial y arbustos con riego automático. También dispone de un sistema de captación de energía solar para el precalentamiento del agua. Para mayor comodidad, el edificio cuenta con parking privado para coches y motos (opcional), así como un espacio para bicicletas.Ubicación inmejorable: a las puertas del barrio de Gràcia, en una zona tranquila y familiar, pero llena de vida y ocio, a dos pasos de la Avenida Diagonal.Perfectamente comunicado con autobuses, metro y ferrocarril, a solo 5 minutos a pie.
Ver más

Ubicación del anuncio

Listados donde aparece este anuncio

contactos de segunda mano en Barcelona #1